Year
2025
Client
export packaging of products
Project Title
Photorealistic Visualization
Location
Edessa, GR
Photorealistic presentation of Industrial metal building
Extension and panel covering of building installation.
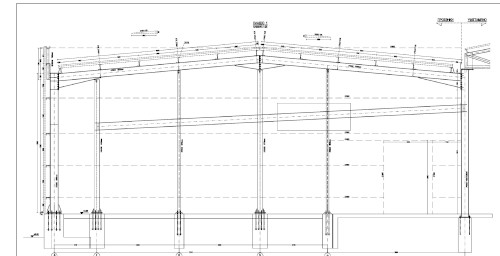
Representation of Existing Structures Based on Architectural Drawings, Floor plans, elevations, and sections were used to accurately document the morphological and geometric characteristics of existing buildings.
The process included the precise survey and digital reconstruction of the current condition, the application of appropriate materials, textures, and construction details. The final result was used for presentation purposes and technical evaluation.
-
3D Design of a Metal Building Extension
-
3D Modeling of a New Office Building
-
Photorealistic Rendering (3D Rendering)
3D Design of Metal Building Extension
Design and development of a 3D model for a proposed extension to an existing steel structure, based on the client’s technical requirements and material selections.
The project included:
• Design of the new addition and its integration into the existing building.
• Parametric study of materials and alternative solutions.
• Production of 3D visualizations for functional and aesthetic assessment.
3D Modeling of a New Office Building
Development of a complete 3D representation of a new office building in accordance with the client’s aesthetic guidelines.
The service included:
• 3D modeling of the existing structure.
• Presentation of aesthetic improvement proposals and alternative design options.
• Creation of a detailed 3D model for exterior spaces.
Photorealistic Rendering (3D Rendering)
Production of high-quality photorealistic images to support the proper selection of colors, materials, and final aesthetics prior to construction.
The deliverables included:
• Realistic daytime visualizations.
• Different color palettes and material options.
• Presentation of the project in a clear and visually appealing manner for the client.
